Te koop Vrijstaande Villa Costa Del Sol Estepona € 1.400.000,-

Estepona

Vanaf € 1.400.000,-

BESCHRIJVING

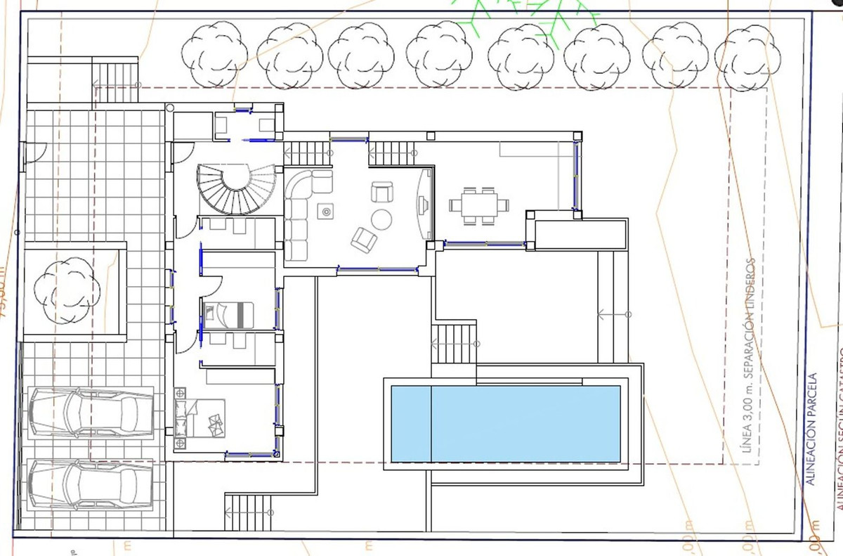
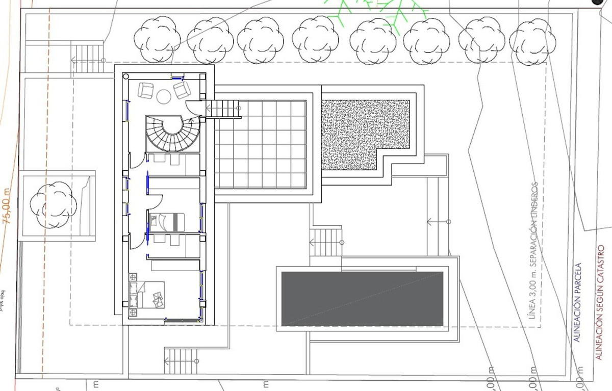
Front line golf villa in Estepona, to be completed 2027. A beautiful home overlooking the golf course. Building licence and architects plans ok and now the construction of a luxurious modern villa with stunning views. Set on a quiet road in one of Estepona's most sought after and up and coming areas. The villa will have 4 bedrooms, 3 en suite with 3 bathrooms in total, large multi level open plan salon, dining room and kitchen over looking the golf course. Outside terraces, pool and lawns facing the golf course. To be completed to a very high standard with the option for the buyer to have a choice in the style finish and fittings in the villa. put your own mark on the house and have it to your own taste. Just 5 minutes from the beaches and 4 mins to supermarkets, several bars and restaurants and farmacia. The project is being completed by costructors with 20 plus years on the coast and multiple award level properties to their name.

Responsive image
640m²
Responsive image
4
Responsive image
3
Responsive image
no
Responsive image
640m²
Responsive image
4
Responsive image
3
Responsive image
no

Slaapkamers: 4

Badkamers: 3

Woonoppervlak: 640m²

Leefruimte: 190m²

Zwembad: no

Tuin: yes

Parking: no

Cooling:

Opslagruimte:

Lift:

Bouwjaar: 2025

Verdieping: Nee

GEBIED

AANVRAAG MEER INFORMATIE

Vul het onderstaande formulier in om meer informatie over deze nieuwe ontwikkeling te ontvangen. (* zijn verplichte velden)

U kunt ook contact opnemen met het kantoor via e-mail or phone:
+34 952 830 378 / +34 677 670 480

STUUR ONS EEN BERICHTJE


Vergeet niet om akkoord te gaan met ons privacy beleid



Alternatieven


Nieuwbouw Spanje maakt gebruik van cookies. Klik hier voor meer informatie. Sluit
x