Te koop Residential Plot Costa Del Sol Casares € 330.000,-

Casares

Vanaf € 330.000,-

BESCHRIJVING

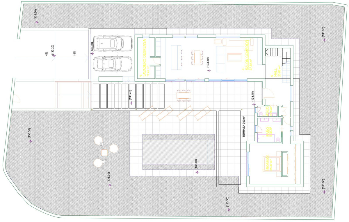
PLOT WITH OFF-PLAN LUXURY ECOLOGICAL VILLA IN MANILVA Ground floor: entrance hall and staircase, guest toilet, living/dining area, with open-plan kitchen and pantry, double bedroom with ensuite bathroom and wardrobe. Large terraces with sitting areas, heated pool and chill-out. First floor; staircase, distributor, 2 double bedrooms with a shared bathroom. Possibility to have a basement at extra cost. Example of some of the specifications, - Interior and exterior floor tiles from GRESPANIA 600x600 – 800x800 - 1000x1000 (Color and size to choose) - Bathroom walls with COVERLAM plates (GRESPANIA) 2700X1200 (Color to choose) - Bathrooms from ROCA or similar - Aerothermia/airconditioning - Underfloor heating in the full villa - Ceiling high windows with a sunken track, 5+5/chamber/4+4 (Color to choose) - Ceiling high and 1-meter wide - Ceiling high pivot door and 1,50 wide - Fully fitted kitchen - Island with COVERLAM no visible joints (Color to choose) - Household appliances from BOSCH or AEG - Heated pool - 15 solar panels - 1 lithium battery of 10kW - Car charger We are a construction company, Key-in-Hand, that can design and construct any possibility you can think of. If you do not see a design of us that you like we design a totally new villa for you according to your ideas and input. Plot is not for sale on his own, it has to be bought with the construction total price construction, plot, project and licenses included 1.495.000 € + VAT

Responsive image
1089m²
Responsive image
3
Responsive image
3
Responsive image
no
Responsive image
1089m²
Responsive image
3
Responsive image
3
Responsive image
no

Slaapkamers: 3

Badkamers: 3

Woonoppervlak: 1089m²

Leefruimte: 236m²

Zwembad: no

Tuin: yes

Parking: yes

Cooling:

Opslagruimte:

Lift:

Bouwjaar: 2025

Verdieping: Nee

GEBIED
Setting: Close To Shops, Close To Town, Close To Schools Orientation: East, South East, South, South West, West Condition: New Construction Pool: Heated Climate Control: Air Conditioning, Hot A/C, Cold A/C, U/F Heating, U/F/H Bathrooms Views: Country, Panoramic, Garden, Pool, Urban, Street Features: Covered Terrace, Fitted Wardrobes, Private Terrace, Solarium, WiFi, Storage Room, Utility Room, Ensuite Bathroom, Access for people with reduced mobility, Barbeque, Double Glazing, Fiber Optic Furniture: Optional Kitchen: Fully Fitted Garden: Private, Easy Maintenance Security: Entry Phone, Alarm System, Safe Parking: Covered, Open, More Than One, Private Utilities: Electricity, Drinkable Water, Telephone, Photovoltaic solar panels, Solar water heating Category: Bargain, Holiday Homes, Investment, Luxury, Off Plan, Contemporary

AANVRAAG MEER INFORMATIE

Vul het onderstaande formulier in om meer informatie over deze nieuwe ontwikkeling te ontvangen. (* zijn verplichte velden)

U kunt ook contact opnemen met het kantoor via e-mail or phone:
+34 952 830 378 / +34 677 670 480

STUUR ONS EEN BERICHTJE


Vergeet niet om akkoord te gaan met ons privacy beleid



Alternatieven


Nieuwbouw Spanje maakt gebruik van cookies. Klik hier voor meer informatie. Sluit
x